Patient Plus Design Standards
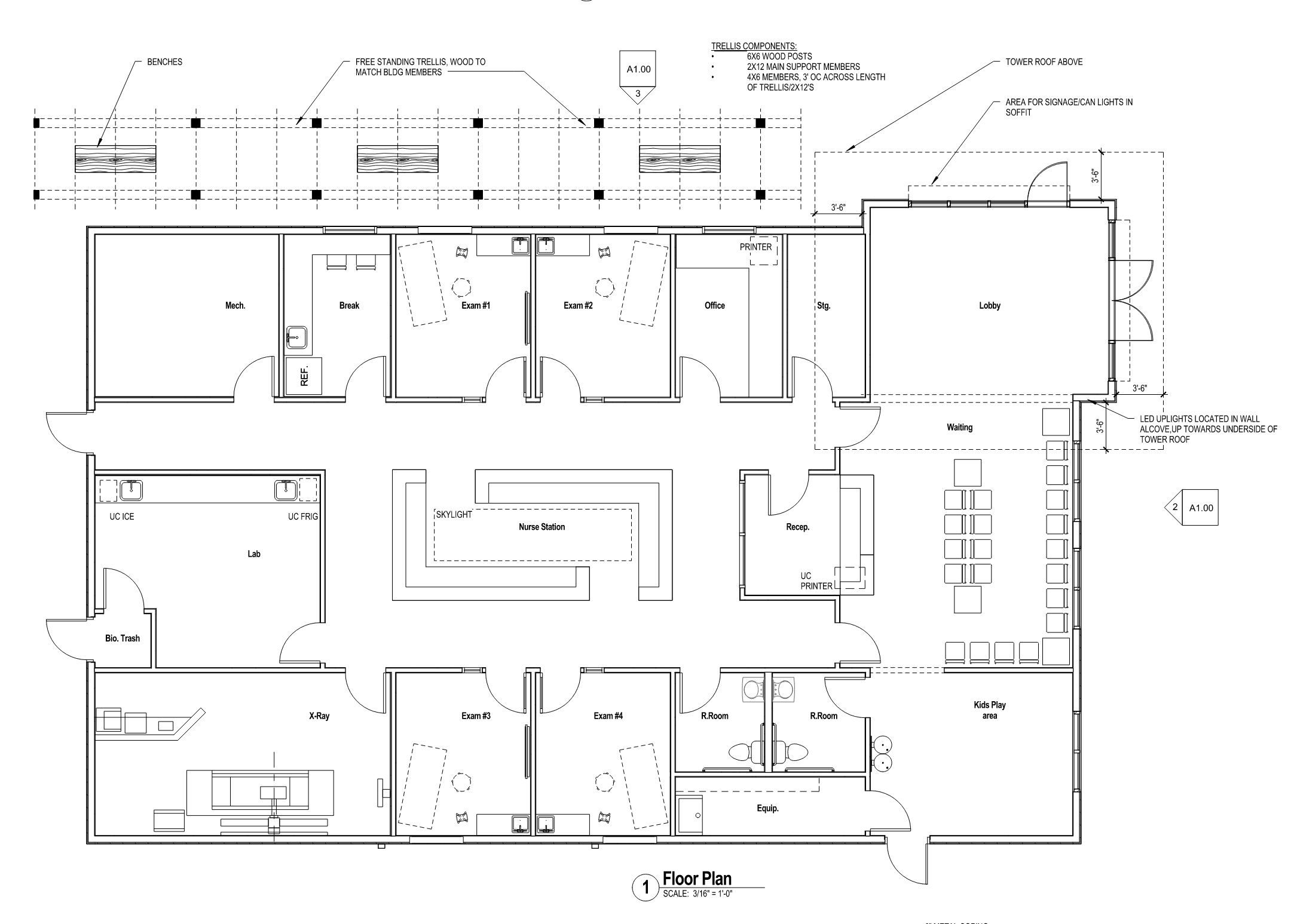
Plus One created the prototype design for all Patient Plus facilities. Working with the medical staff we redesigned their internal workflow, physical spaces, graphics and branding guidelines. The building's design facilitates easy navigation for both patients and medical staff, and it is specifically tailored to support the quick turnover of patients that urgent care clinics require.
Design Standard Protocol
New Construction
Interior Layout / Workflow Design
Prototype Design
